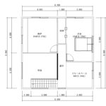
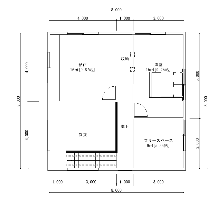
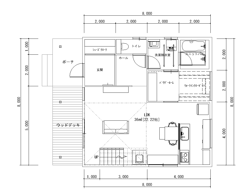
仙台市太白区 T様邸 NEW 2026年2月10日 仙台市太白区 T様邸 木に包まれたやわらかい暮らし 外観 片流れの屋根と玄関からデッキまでつながる深い軒は、デザイン性と日々の暮らしやすさを両立。 間取 キッチン背面にはすぐ使えるパントリーを設け。パウダールームとウォークインクローゼットをすぐ隣に配置、さらに抜けると洗面脱衣所があり日々の家事のストレスフリーな導線を設計。 断熱気密 外断熱+充填断熱により北海道基準クリアの建物。屋根には断熱材と遮熱シートが入っているので、夏の暑さも防いでくれます。 内装 木に包まれ心地よい室内は、白い漆喰壁に、天井の赤松の羽目板と市松模様の桐の床がアクセント!! 平面図 1F 2F 施工中 ①基礎工事 ②給排水工事 ③土台敷・床断熱 ④建て方 ⑤建て方2 ⑥屋根工事 ⑦木工事 ⑧断熱充填 ⑨漆喰仕上げ ⑩桐床仕上げ 施工後 ①リビング ②キッチン ③パウダールーム ④ウォークインクローゼット ⑤玄関 ⑥フリースペース ⑦洋室 外観 外観2 ← 仙台市太白区 M様邸 NEW