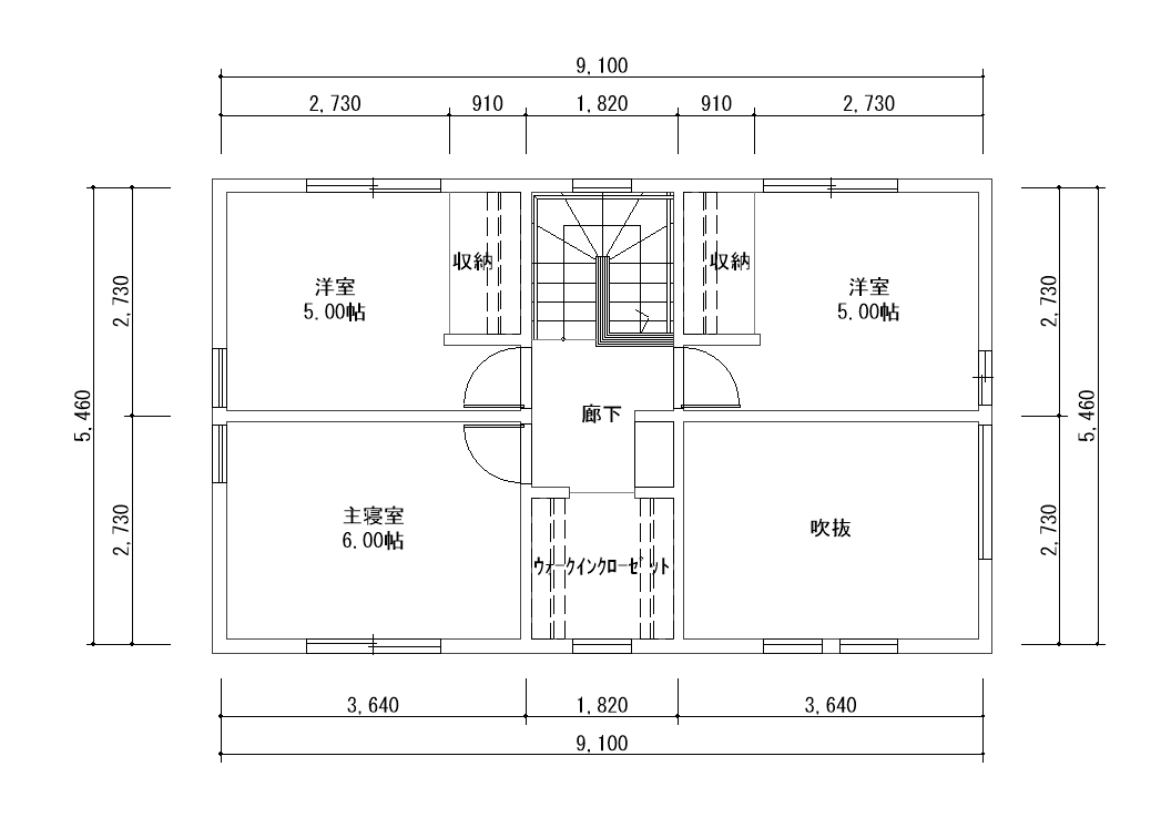
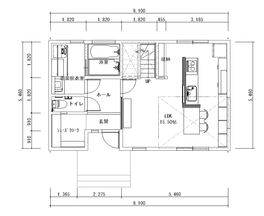
仙台市太白区 M様邸 NEW 2026年2月10日 仙台市太白区 M様邸 自然の中に建てた自然の家 外観 総2階の凹凸が少ないスッキリとしたデザインに、白い塗り壁と切妻屋根の組合せが可愛らしく自然の中にとけこむ外観。 間取 吹き抜けからの明かりが奥まで差し込むダイニングキッチンは、回遊導線がこだわり。リビングには玄関からつながる造作窓と階段下のデッドスペースを生かした秘密基地! 断熱気密 遮熱シートで屋根・壁を覆い赤外線を96%カット。断熱+遮熱で夏は涼しく、冬は暖かい住まいです。 内装 壁には白い漆喰、床には子どもと一緒にゴロゴロしたくなる無垢の杉フロアを採用。緑を見ながら深呼吸したくなる空間に。 平面図 1F 2F 施工中 ①基礎工事 ②給排水工事 ③建て方 ④木工事 ⑤充填断熱 ⑥木工事 ⑦喰仕上げ ⑧屋根工事 ⑨外壁下塗り ⑩外壁 施工後 ①リビング ②ダイニング ③キッチン ④洗面脱衣室 ⑤浴室 ⑥トイレ ⑦土間収納 ⑧吹き抜け ⑨秘密基地 ⑩寝室 ⑪ウォークインクローゼット ⑫洋室 外観 外観2 ← 鶴が丘リノベの家仙台市太白区 T様邸 NEW →